На верх

Проект дома с террасой 4 спальни

NORD-195

196 м2
Площадь дома
Материал стен
Клееный брус
2
Этажа
5
Комнат
4
Спальни
3
Санузла
7,51 млн ₽

Стоимость может меняться
в зависимости от комплектации

Получить смету
Обсудить проект

Планировки

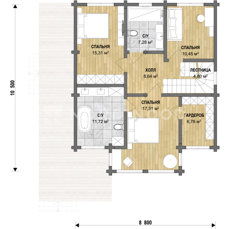
113 м2
Площадь 1 этажа
83 м2
Площадь 2 этажа

Фасады

Комплектация

Это новый проект двухэтажного дома из бруса NORD-195 общей площадью 196 м². Первый этаж - 113 м², второй этаж - 83 м². В доме пять комнат. На первом этаже расположены прихожая, гостиная, кухня-столовая, одна спальня, санузел и котельная. Из кухни есть выход на террасу. На втором этаже - три спальни и два санузла.

Среди проектов домов двухэтажных от м²  NORD-195 занимает особое место благодаря продуманной планировке. Стоимость проекта - 7,51 млн ₽, но цена может меняться в зависимости от комплектации. Фиксируем итоговую сумму в договоре без скрытых доплат. Собственное производство в Вологде позволяет держать цены ниже рынка. Все типовые проекты жилых домов NORDWOOD строятся из качественного клееного бруса с гарантией 5 лет.

Типовые проекты домов из бруса

В каталоге вы можете ознакомиться с другими проектами домов двухэтажных от 83 м² до 250 м². Чтобы заказать двухэтажный дом из клееного бруса «под ключ», свяжитесь с нами любым удобным способом - позвоните по тел.8 (800)555-1-700 или 8 (962) 669-00-00, отправьте заявку на e-mail или оставьте заявку на сайте. Наш представитель перезвонит вам, уточнит детали заказа, сориентирует по срокам строительства, ответит на все возникшие вопросы.

Почему именно клееный брус

Используем только качественный клееный брус
собственного производства
  • Отделка сразу

    Не нужно откладывать переезд в новый дом

  • Минимум усадки

    Всего 1-2% от исходной высоты дома

  • Высокая прочность

    За счет технологичной склейки

  • 10-12% влажности

    Материалы не деформируются со временем

Используем только качественный клееный брус собственного производства

Как мы добиваемся качества

Клей
Бесформальдегидные клеевые системы Akco Nobel. Аналогичный клей используют при изготовлении детской посуды и игрушек.
Древесина
Северные породы хвойной древесины 1 сорта (А, В класса) в соответствии ГОСТ 8486-86. Каждая доска проходит проверкой службой технического контроля.
Оборудование
Фирменные немецкие и американские станки. Используем проверенную технологию обработки северной древесины высокого качества.
Упаковка
Готовый брус доставляется исключительно в транспортировочных пакетах и хранится вплоть до сборки самого комплекта.
Посчитать дом как на картинке?
Посчитать дом
как на картинке?
(с разбросом 5-10%)

Этот вариант вам подойдет, если вы хотите дом точь-в-точь, как на фотографиях проекта.

Прикрепить проект или планировку

Прикрепленные файлы
Максимум 3 файла.
Ограничение 25 МБ.
Допустимые типы: jpg jpeg png.

Планируете начать стройку в 2026 году?

Зафиксируйте за собой цены 2025 года:

Статьи по этой теме

20 мая 2020
Если вы планируете построить дом из клееного бруса и вам нужен домокомплект, вы обратились по адресу. Компания «NORDWOOD» более 15 лет делает и собирает домокомплекты из бруса по проектам любой сложности.
06 мая 2020
Сохранить великолепие дома из клееного бруса и подчеркнуть его достоинства позволяет дизайн интерьера. Но зачастую выбрать грамотное решение непросто. Из этой статьи вы узнаете, какие варианты дизайна предлагают профессионалы.
05 апреля 2020
Строительство домов из клееного бруса стало популярным относительно недавно, поэтому до сих пор многие не решаются выбрать этот материал. Эксперты компании «НОРДВУД» не понаслышке знают об особенностях клееного бруса и готовы рассказать о них.